# 施工图
施工图,是表示工程项目总体布局,建筑物、构筑物的外部形状、内部布置、结构构造、内外装修、材料作法以及设备、施工等要求的图样。
施工图按专业种类可划分为建筑施工图、结构施工图、水电施工图等;施工图主要由图框、平立面图、大样图、指北针、图例、比例等部分组成。
# 几何类图纸
# 平面图
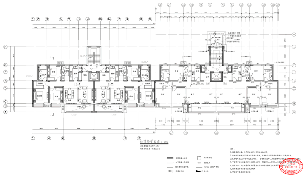
方案阶段平面图主要描述户型的布局,而到了施工图阶段,则需要根据工程需要进行具体的参数和工艺描述。
对称户型的方案平面+施工图平面拼接

# 立面图
# 剖面图
剖面图

# 详图
# 非几何类图纸
# 设计说明
设计说明是对项目信息的综合描述,包含地理位置、业主方、建设方、设计方以及各个专业依赖的国家地方规范和设计依据。
# 材料做法表
材料做法表是对几何图纸的信息补充,大部分建筑专业的工艺要求在材料做法表中体现。
# 图框
图框包含了设计院信息,建设方,设计负责人,图纸专业等内容
